Запросить
коммерческое предложение
коммерческое предложение
Нужна консультация?
Закажите обратный звонок
Мы свяжемся с Вами в ближайшее время
Мы свяжемся с Вами в ближайшее время
Остались вопросы?
Свяжитесь с нами удобным способом
Назначение
Характеристики
Описание
Комплектация
Назначение автоматической подачи модели ВП630
Устройство подачи рулонного материала валкового типа предназначено для точной подачи с программируемым шагом металлической ленты (рулона) в зону штамповки кузнечно-прессового оборудования. Устройство работает с приводным держателем (разматывателем) рулона напрямую (без правки рулона), либо с правильным устройством.
Базовое климатическое исполнение УХЛ категория размещения 4 по ГОСТ 15150.
Управление устройством осуществляется программированием его функций с сенсорной панели оператора. Возможно изготовление устройств (по отдельному техническому заданию) данной модели для подачи ленты (полосы) толщиной до 8 мм.
Устройство может располагаться с любой доступной стороны стола пресса и может работать в толкающем (основной) и тянущем режимах. Для работы с полосами, возможна установка двух синхронных подач, одна из которых работает в толкающем, а вторая в тянущем режиме (для доработки остатка полосы). Как более бюджетный вариант вторая (тянущая) подача может быть другой серии например ВПЛ нашего производства.
Технические характеристики ВП630
| Ширина ленты, наибольшая, мм | 630 |
| Толщина ленты, мм | 0,5…3 |
| Скорость подачи наибольшая, м/мин | 46 |
| Скорость подачи (опционально), м/мин | 31 |
| Программируемый шаг подачи, мм | 5…9999,99 |
| Точность шага подачи ленты, мм | ±0,1 |
| Количество подающих валков, шт | 2 |
| Диаметр подающих валков, мм | 100 |
| Максимальное усилие прижима валков, Н (кг) | 8360 (850) |
| Род тока | Переменный, трёхфазный |
| Напряжение, В | 380±38 |
| Частота тока, Гц | 50±1 |
| Режим работы электросхемы | Наладочный, Одиночный цикл, Автоматический |
| Количество электродвигателей, шт. | 1 |
| Мощность электродвигателя, кВт, не более | 3,5 |
| Наибольшая частота вращения серводвигателя регулируемая (ограниченна программно), мин-1 | 1500 |
УСТРОЙСТВО ВАЛКОВОЙ ПОДАЧИ МОДЕЛИ ВП630
Устройство подачи рулонного материала валкового типа предназначено для точной подачи с программируемым шагом металлической ленты (рулона) в зону штамповки кузнечно-прессового оборудования. Устройство работает с приводным держателем (разматывателем) рулона напрямую (без правки рулона), либо с правильным устройством. По климатическому исполнению устройство предназначено для эксплуатации в условиях в части воздействия климатических факторов внешней среды нормированных для исполнения УХЛ4.
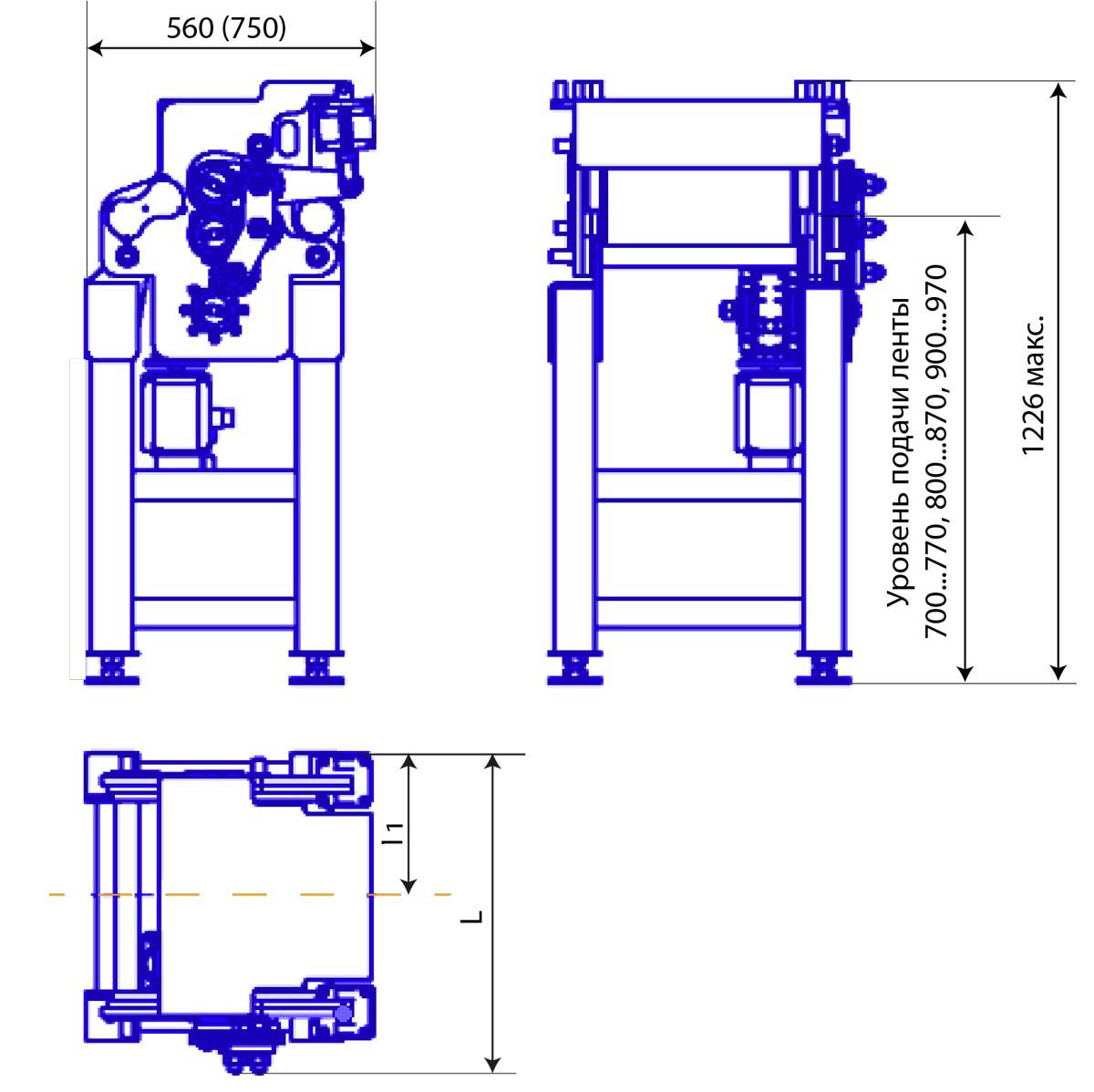
Общий вид валковой подачи ВП630

Габаритные размеры валковых подач ВП

|
Размеры, без учета шкафа управления |
ВП160 |
ВП250 |
ВП400 |
ВП630 |
ВП800 |
|
L, мм |
600 |
690 |
840 |
1070 |
1240 |
|
l1, мм |
250 |
295 |
370 |
485 |
570 |
|
Расстояние от пола до уровня подачи ленты (зеркало штампа) |
При заказе этот параметр оговаривается отдельно. |
||||
РАБОТА ВАЛКОВОЙ ПОДАЧИ МОДЕЛИ ВП630 И ЕЕ ЧАСТЕЙ

Принцип работы правильно подающего устройства заключается в следующем:
Вращение от серводвигателя (поз. 1) передается на червячный редуктор (поз.2) далее посредством зубчатой передачи (поз. 3) вращает два подающих валка один из которых (поз.4) подвижный, поднимается и опускается двумя синхронными пневмоцилиндрами (поз. 5). Рабочее давление в цилиндрах прижима 0,2…1 МПа. Регулировка осуществляется регулятором.
Контроль за линейным перемещением ленты осуществляется энкодером (поз. 6) который постоянно прижат к ленте пневмоцилиндром (на рисунке пневмоцилиндр не показан). При правильной настройке ролик энкодера беспрепятственно наезжает на ленту при ее заправке и вращается без проскальзывания. Давление в цилиндре регулируется.
Все органы управления находятся на шкафу управления и подробно описаны в ВП2013-002-Устройство подачи рулонной стали валкового типа. Руководство по электрооборудованию.
ПНЕВМАТИЧЕСКИЕ ЭЛЕМЕНТЫ ВАЛКОВОЙ ПОДАЧИ МОДЕЛИ ВП630
M043-R12 манометр - 2 шт

Использованы пневматические элементы фирмы Camozzi
- MC104-F00 фильтр. Резьба на входе К1/4.
- PM11-NA реле давления
- 31M2A080A020 - цилиндр - 2 шт. Прижим валка.
- 31M1A040A015 Цилиндр - 1 шт. Прижим ролика энкодера.
- 358-015-02 Распределитель – управление цилиндрами поз. 3.
- M008-R00(HUB=0)-0...10 атм. Регулятор давления в цилиндрах прижима валка.
- M008-R00(HUB=0)-0...10 атм. Регулятор давления в цилиндре прижима ролика энкодера
- M043-R12 манометр - 2 шт.
Общие параметры подаваемого воздуха ВП630
|
t° окружающей среды |
-20..+80°С |
|
t° воздушного потока |
-10..+ 60°С |
|
Очистка воздуха в соответствии со стандартом DIN ISO 8573-1 |
класс 7/5/4 |
|
Смазка системы |
не требуется; в случае начала применения используется масло с вязкостью не более ISOVG32 |
|
Содержание масел |
от 0,5 до 5 капель на 1000 литров воздуха |
Все оборудование Camozzi обрабатывается консистентной смазкой, позволяющей избежать применения дополнительных смазочных смесей в воздушный поток в течение всего срока эксплуатации пневмоаппаратуры. В случаях, когда приводы функционируют в экстремальных условиях (высокая скорость перемещения и частота срабатывания), в зависимости от класса качества сжатого воздуха согласно стандарту DIN ISO 8573-1 дополнительно применяются различные модели маслораспылителей Camozzi.
УКАЗАНИЕ МЕР БЕЗОПАСНОСТИ ВАЛКОВОЙ ПОДАЧИ МОДЕЛИ ВП630
Устройство подачи рулонной стали валкового типа, соответствует требованиям ГОСТ 12.2.017-93. Установку устройства на месте эксплуатации производить персоналом, имеющим соответствующую подготовку.
При подготовке устройства к работе необходимо:
- провести проверку технического состояния всех устройств (отсутствие внешних повреждений, наличие смазки в зубчатой передаче, наличие масла в редукторах, натяжение клиноременной передачи, работоспособность механизма подъема валков;
- все подвижные части устройства, расположенные внутри, закрыть кожухами;
- устройство заземлить;
- зону движения ленты оградить ограждением, которое изготавливает предприятие потребитель.
При эксплуатации устройства необходимо соблюдать следующие требования:
- заправку ленты в устройство и далее в штамп осуществлять в режиме «Наладка»;
- для ограничения перемещения рулона на барабане в продольном направлении необходимо применять ограничители;
- аварийную остановку комплекса осуществлять кнопкой аварийной остановки, расположенной на пульте управления.
Измерение параметров устройства производить, соблюдая меры безопасности.
При эксплуатации устройства категорически ЗАПРЕЩАЕТСЯ:
- работа комплекса в автоматическом режиме без ограждения зоны движения ленты;
- производить смену рулона во время работы устройства;
- производить ремонтные и регулировочные работы, проверку электрооборудования, уборку без отключения устройства от сети;
- допускать к работе рабочих без предварительного изучения конструкции устройства, эксплуатационных особенностей и требований техники безопасности.
При отсутствии электроэнергии вводной выключатель, установленный в передней дверце шкафа управления, перевести в положение «выключено».
По окончании работы выключить комплекс, перевести вводной выключатель в положение «выключено».
ВНИМАНИЕ!!! При отсутствии заземления станины устройство не включать.
По Техническому Заданию заказчика могут измениться габаритные размеры и масса устройства подачи рулонного материала валкового типа. Подробное ТКП можно получить после предоставления Технического Задания. Технические изменения, существенно не влияющие на характеристики подающих устройств, завод-изготовитель оставляет за собой.
Стандартная комплектация ВП630
- Устройство подачи рулонного материала в сборе.
- Документация:
- Устройство подачи рулонной стали валкового типа. Руководство по эксплуатации.
- Устройство подачи рулонной стали валкового типа. Руководство по электрооборудованию.
Дополнительные опции ВП630
- Приводной разматыватель рулона.
- Устройство контроля петли на входе.
- Пневмосистема с усилителем давления.
- Привод на регулировку подачи по высоте.
- Автоматическая система нанесения смазки на ленту валкового типа.
- Устройство наклеивания стикера со штрих кодом (аппликатором).
ПромСтройМаш является непосредственным производителем ВП630 Мы производим и продаём Автоматическая подача ВП630 во все регионы РФ и страны ближнего зарубежья, такие как Беларусь, Казахстан. ВП630 нашего производства хорошо зарекомендовали себя в Москве, Ярославле, Нижнем Новгороде, Екатеринбурге, Новосибирске и других городах России. Купить ВП630 вы можете непосредственно у нас или у наших дилеров. Автоматическая подача с сервоприводом

