Запросить
коммерческое предложение
коммерческое предложение
Нужна консультация?
Закажите обратный звонок
Мы свяжемся с Вами в ближайшее время
Мы свяжемся с Вами в ближайшее время
Остались вопросы?
Свяжитесь с нами удобным способом
Назначение
Характеристики
Описание
Комплектация
Назначение трубогибочной машины ИВ3430М
Машина трубогибочная с механическим приводом ø100х3000мм модель ИВ3430М предназначена для гибки металлических труб в холодном состоянии без наполнителя.
Машина может быть использована в котлостроительной, судостроительной промышленности, в промышленном и гражданском строительстве при производстве санитарно-технических работ, на заводах.
Гибочный станок ИВ3430М, предназначен для гибки труб по ГОСТ 3262-75 и ГОСТ 10704-91 в холодном состоянии с оправкой (дорном*) и без нее методом наматывания трубы на гибочный ролик минимальным радиусом гиба 1,5 диаметра трубы, максимальный радиус гиба 500 мм. Машины трубогибочные с механическим приводом оснащены электронным блоком включающего в себя системы управления двигателем через реверсивный магнитный пускатель «Вперёд», «Назад». Пульт управления на базе контроллера с 4-х значным индикатором используется для задания «Угла гиба», отслеживания текущего процесса гиба по датчикам «Угла» и «Исходное», и управлением остановом в заданной точке. При этом, для точности отработки «угла гиба», используется принцип останова двигателя методом «противовключения». Точность выполнения угла гиба 1-2 градуса. Система управления имеет «ручной» и «автоматические» режимы работы станка.
Дорн применяется для уменьшения образования овальности и гофров. ПО ГОСТ 17380-2001 овальность не более 6% Можно производить гибку без дорна, если не предъявляется высокие требования к форме сечения трубы на изогнутом участке или отношение толщины стенки к ее диаметру составляет более 0,1.
Базовое климатическое исполнение УХЛ категория размещения 4 по ГОСТ 15150.
Преимущества трубогиба ИВ3430М
- небольшая стоимость, простая и надёжная схема управления
- наличие в машине гибочной штанги с переставными упорами позволяет производить последовательные гибы без предварительной разметки труб по длине.
- при гибке с оправкой (дорном) эллипсность трубы на изогнутом участке составляет не более 5%.
Недостатки ИВ3430М
- нет управления скоростью гиба
- управление двигателем в таком режиме приводит к «ударным» нагрузкам на механизмы станка
- для более мощных станков (более 7,5 кВт) применение данной системы не целесообразно
- ввиду повышенного износа механических деталей станка.
Технические характеристики ИВ3430М
| Максимальная толщина стенки изгибаемой трубы, мм | 5 |
| Диаметр изгибаемой трубы с пределом текучести σт=250 МПа (25 кгс/мм2): | |
| - Наибольший диаметр изгибаемой трубы, мм | 108 |
| - Наименьший диаметр изгибаемой трубы, мм | 40 |
| Наибольший внутренний радиус гибочного инструмента, мм | 500 |
| Наименьший внутренний радиус гибочного инструмента, мм | 1,5D/2,0D |
| Наибольший угол поворота гибочного инструмента, град. | 210 |
| Частота вращения гибочного инструмента, об/мин | 2 |
| Расстояние от оси центра гибочного инструмента до места крепления конца оправки, мм | : |
| - стандартное исполнение | 3000 |
| - по индивидуальному заказу | 6000 |
| Напряжение силовой цепи, В | 380 |
| Мощность электродвигателя, кВт | 15 |
| Номинальная частота вращения электродвигателя, об/мин | 750 |
| Высота оси гиба над уровнем пола, мм | 960 |
| Габаритные размеры машины, мм | |
| - слева-направо | 3730 |
| - спереди-назад | 1930 |
| - высота | 1160 |
| Масса машины с комплектом инструмента, кг | 2100 |
| Технические изменения, существенно не влияющие на характеристики машины, завод-изготовитель оставляет за собой | !!! |
УСТРОЙСТВО ТРУБОГИБОЧНОЙ МАШИНЫ С МЕХАНИЧЕСКИМ ПРИВОДОМ МОДЕЛИ ИВ3430М
Общий вид с обозначением составных частей машины представлен на рисунке.

| Поз. | Наименование | Обозначение |
| 1. | Редуктор | ИВ3430М-21-001 |
| 2. | Механизм зажима | ИВ3430М-31-001 |
| 3. | Механизм поджима | ИВ3430М-32-001 |
| 4. | Механизм выдергивания дорна | ИВ3430М-33-001 |
| 5. | Штанга | ИВ3430М-34-001 |
| 6. | Прибор отсчета угла поворота гибочного сектора | ИВ3430М-41-001 |
| 7. | Штанга разметочная | ИВ3430М-51-001 |
| 8. | Ограждение | ИВ3430М-71-001 |
| 9. | Электрооборудование | ИВ3430М-91-001 |
| 10. | Электрошкаф | ИВ3430М-92-001 |
| 11. | Пульт управления | ИВ3430М-95А-001 |
СИСТЕМА СМАЗКИ
Смазка механизмов машины индивидуальная ручная. Периодическая. Контроль визуальный. В редуктор залить масло «Индустриальное И-30» ГОСТ 20799-88 в объеме 15дм3.
Смену масло в редукторе производить один раз в шесть месяцев.
Смазка пар трения осуществляется смазкой ЦИАТИМ -203 ГОСТ 8773-73. Смазку машины производить согласно карте смазки.
Электрогидравлический толкатель заполнен маслом трансформаторным ГОСТ 382-80, объем масла 1,6 дм3
Смену масла в толкателе рекомендуется производить не реже одного раза в 6 месяцев
Описание точек смазки
| Механизм, подлежащий смазке | Смазываемые места | Кол-во точек | Смазывающий материал | Способ смазки | Периодичность смазки |
| Редуктор | Червячная пара, шестерни, подшипники | 1 | И-30А | Заливка через отверстие корпуса. Контроль уровня масла по маслоуказателю | Масло менять 1 раз в 6 месяцев. Доливать по мере необходимости |
| Опора вала гибочного сектора | 1 | ЦИАТИМ-203 | Нагнетание смазки при помощи шприца | 1 раз в смену | |
| Верхние подшипники промежуточных валов | 2 | Закладка смазки в подшипники | При профилактических осмотрах и текущих ремонтах | ||
| Механизм поджима | Направляющие ползуна | 8 | Смазывание поверхности | 1 раз в смену | |
| Механизм выдергивания дорна | Вал рычагов | 1 | Нагнетание смазки при помощи шприца | 1 раз в смену | |
| Прибор отсчета гиба | Опорные подшипники вала | 2 | Закладка смазки в подшипники | При профилактических осмотрах и текущих ремонтах | |
| Цепь и звездочки цепной передачи | 2 | И-30А | Смазывание поверхностей | 1 раз в смену |
РАБОТА ТРУБОГИБА ИВ3430М
Схема кинематическая

Вращение гибочного сектора 13 осуществляется от электродвигателя I через муфту 12 на вал, вращающийся в конических роликоподшипниках 15 и шарикоподшипнике 17. Червяк 2, расположенный на валу I через червячное колесо 3 передает вращение на вал II, установленный в конических роликоподшипниках 15 и шестерне 4. Зубчатой передачей шестерен 4 и 5 вращение передается на вал III, вращающийся в конических роликоподшипниках 14 и шестерне 6. Шестерня 6 передает движение шестерне 7 и жестко связанный с ней гибочный ролик 13.
На валу IV расположена звездочка 8, передающая вращение на прибор отсчета угла поворота гибочного ролика.
Для уменьшения действия сил инерции при отключении электродвигателя предусмотрен тормоз колодочный П с электрогидравлическим толкателем.
Зажим трубы на гибочном ролике и поджим колодки к трубе осуществляется винтами.
Рычагом 18 через тягу 19 дорн 20 выдергивается из зоны защемления.
Перечень к кинематической схеме трубогиба ИВ3430М
| Поз. | Обозначение | Наименование | Кол-во | Примечание |
| 1. | АИР 160 М8 У1 | Электродвигатель | 1 |
11 кВт ~750 об/мин
|
| 2. | ИВ3430-21-419 | Червяк | 1 | |
| 3. | ИВ3430-21-202 | Колесо червячное | 1 | |
| 4. | ИВ3430-21-415 | Шестерня | 1 | |
| 5. | ИВ3430-21-401 | Колесо | 1 | |
| 6. | ИВ3430-21-402 | Шестерня | 1 | |
| 7. | ИВ3430-31-301 | Колесо зубчатое | 1 | |
| 8. | ИВ3430-31-416 | Звездочка | 1 | |
| 9. | ИВ3430-41А-401 | Звездочка | 1 | |
| 10. | Цепь ПР-12,7-900 | 1 | ||
| 11. | Муфта | 1 | ||
| 12. | ТГ-200 | Тормоз колодочный | 1 | |
| 13. | Ролик гибочный | сменный | ||
| 14. | Подшипник №7518 | 2 | ГОСТ 333-79 | |
| 15. | Подшипник №7611 | 4 | ГОСТ 333-79 | |
| 16. | Подшипник №60202 | 2 | ГОСТ 333-79 | |
| 17. | Подшипник №208 | ГОСТ 333-79 | ||
| 18. | Рычаг | 1 | ||
| 19. | Тяга дорна | 1 | ||
| 20. | Дорн | 1 | сменный | |
Рама
Рама представляет собой конструкцию, состоящую из двух балок и сварной стойки, соединенных между собой болтами. Стойка имеет направляющие, по которым может перемещаться механизм выдергивания дорна. Рама крепится к корпусу редуктора болтами и стяжками.
Редуктор трубогиба ИВ3430М

Редуктор машины трехступенчатый червячно-цилиндрический. Крутящий момент от электродвигателя через предохранительную моментную муфту 6 предается на червяк II, вращающийся в подшипниках качения 9, 12. Регулировка Зазоров в подшипниках 9 производится за счет кольца 8. На червяке II установлена крыльчатка 10, создающая масляный туман для смазки вращающихся частей в верхней части редуктора. Червяк II зацепляется с червячным колесом 5, расположенным на валу 14, вращающемся в конических роликоподшипниках 15. Регулировка зазоров в подшипниках обеспечивается набором прокладок 13, 3. Шестерня 4 входит в зацепление с шестерней 19, расположенной на валу 18, вращающемся в конических роликоподшипниках 17. Регулировка зазоров в подшипниках обеспечивается набором прокладок 21, 16. Шестерня 20 зацепляется с колесом 2, находящемся на валу I, передающем крутящий момент через механизм зажима на гибочный ролик.
Для гашения инерции вращающихся масс, после выключения электродвигателя, на быстроходном валу редуктора смонтирован колодочный тормоз 7, тип ТГ-200 с электрогидравлическим толкателем.
Механизм гибки и зажима трубогиба ИВ3430М

Механизм предназначен для зажима трубы и установки гибочного ролика. Состоит из щек I, 6 между которыми расположена гайка 2 с винтом 3, перемещающему кронштейн 4 с зажимной губкой 5. Щека I жестко закреплена на выходной шестерне редуктора с помощью шпонок и винтов.
Крутящий момент на гибочной ролик предается с помощью шпонок. В зависимости от диаметра гибочного ролика гайка 2 с винтом 3 и кронштейна 4 переставляются в отверстиях щек.
Механизм поджима трубогиба ИВ3430М

Механизм поджима обеспечивает подвод и отвод противоупора (штанги) при гибке трубы. В сварном кронштейне I размещается гайка 2 с винтом 3, шарнирно соединенный со штангой. На боковой поверхности кронштейна устанавливается прибор отсчета угла поворота гибочного сектора.
Механизм выдергивания дорна трубогиба ИВ3430М

Механизм выдергивания дорна предназначен для удержания дорна во время гибки и для выдергивания его из трубы в случае защемления.
В сварном кронштейне I на оси 2 установлены на шпонках рычаги 3, 4. В рычаге 4 шарнирно закреплена тяга дорна 5, на которой крепится дорн 6. Выдергивание дорна производится с помощью рычага вставляемого в отверстие оси 2, возврат дорна в исходное положение производится пружиной 7. Устанавливается механизм выдергивания дорна на заднем конце штанги.
Штанга служит противоупором при гибке трубы. Сварная балка I служит противоупором при гибке трубы. Сварная балка I, установленная на сварном кронштейне 2, может поворачиваться вокруг цапфы 3 и в зависимости от диаметра гибочного ролика может перемещаться по кронштейну 2. В балке устанавливается призматическая колодка, перемещающаяся по балке совместно с трубой. В исходное положение колодка возвращается под действием груза 4.
Поджимается балка с помощью винта механизма поджима, шарнирно соединенного с балкой. Для удобства транспортирования балка выполнена из 2-х частей.
Прибор отсчета угла поворота гибочного ролика трубогиба ИВ3430М

Прибор отсчета угла поворота гибочного ролика представляет собой барабан 2, вращающийся на двух шарикоподшипниках 5. Вращение передается цепью от вала главного привода через звездочку 12. На барабане 2 свободно посажены диски 9 с кулачками I, воздействующими на микропереключатели 13. Между дисками 9 помещены диски 8, связанные с барабаном шпонками. На дисках 9 винтами 6 стопорятся лимбы 7 с делениями от 00 до 2200. На дисках 8 нанесены риски, соответствующие исходному положению механизмов гибки. После расстановки дисков 9 в положения, соответствующие углам гиба, весь пакет сжимается гайкой 4.
Штанга разметочная трубогиба ИВ3430М

Узел предназначен для гибки труб без предварительной разметки, состоит из штанги I с упорами 2, закрепленными на ней. Штанга установлена в опорах 3, закрепленными на балке штаги.
Упоры состоят из флажка и клеммы. Флажок может поворачиваться относительно клеммы, что позволяет флажку опускаться на тягу дорна при стягивании трубы с дорна. При загрузке трубы и при гибке по разметке упоры за ручку откидываются в верхнее положение.
Инструмент
Инструмент для гибки состоит из гибочного ролика, дорна и зажимной губки.
По заказу потребителя машина комплектуется набором инструмента для гибки водогазопроводных труб 1 ¼” … 3 ½”.
Рекомендации по изготовлению инструмента даны в разделе 7.
УСТАНОВКА ТРУБОГИБОЧНОЙ МАШИНЫ МОДЕЛИ ИВ3430М
Распаковка
Вскройте заводскую упаковку. После вскрытия упаковки осмотрите машину и проверьте комплектность согласно упаковочной документации.
Транспортирование
Зачаливание машины для подъема производите согласно схеме.

Расконсервация трубогиба ИВ3430М
Антикоррозийное покрытие снимайте не металлическим скребком, затем обтирочным материалом, смоченным жидкостью, растворяющей минеральные масла (бензин, уайт-спирит и другие). Очищенные места покройте тонким слоем жидкого индустриального масла.
Установка
Машина устанавливается на фундамент.

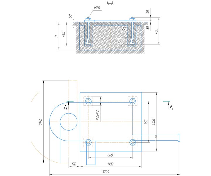
На фундаменте машина проверяется по уровню, устанавливаемому на верхней плоскости корпуса редуктора. Отклонение от горизонтальности до 3-х мм на длине 1000мм в продольном и поперечном направлениях.
Подводку проводов от электрошкафа к распределительной коробке машины выполнить в металлической трубе.
Заземление машины и шкафа выполнить через специальные болты (винты) на корпусах в соответствии с действующими правилами.
Подводки к сети электрошкафа выполнить проводом сечением не менее 6 мм2.
Залить масло в редуктор 15 дм3 (см. карту смазки).
Проверить полностью ли заполнен толкатель тормоза маслом: при необходимости долить масло трансформаторное (заливка неэлектроизоляционного масла не допускается) в следующем порядке:
- Вынуть ось соединяющую шток толкателя с рычагом тормоза и выдвинуть шток:
- Вывернуть пробку из отверстия для заливки масла:
- Через отверстие залить в толкатель масло до заполнения:
- Закрыв отверстие для заливки, вручную прокачать штоком масло в толкатель для удаления воздуха из под поршня и электродвигателя: при прокачивании уровень масла понижается, поэтому необходимо производить доливку масла до тех пор, пока оно не начнет выливаться из отверстия.
Опробовать на холостом ходу работу всех механизмов машины.
Глубина заложения фундамента Н выполняется в зависимости от грунта, но не менее 550 мм.
ЭЛЕКТРООБОРУДОВАНИЕ ТРУБОГИБА МОДЕЛИ ИВ3430М
Общие сведения
Электросхема машины трубогибочной состоит из следующих цепей
- силовая цепь переменного тока напряжением 380В.
- цепи управления напряжением 24В.
Защита
Защита электрооборудования машины от токов короткого замыкания осуществляется однополюсными автоматическими выключателями FU1…FU2.
Защита от перегрузки осуществляется автоматом QF1 и тепловым реле PT1
Нулевая защита электросхемы осуществляется магнитными пускателями.
Сигнализация
Лампа HL1, плафон белого цвета – сигнализирует о наличии напряжения в сети.
Указание по технике безопасности и по обслуживанию электрооборудования
Перед включением электросхемы в работу необходимо произвести внешний осмотр всего электрооборудования и заземления.
ПРИ ОСМОТРЕ И РЕМОНТЕ ЭЛЕКТРОАППАРАТУРЫ ВВОДНОЙ АВТОМАТ ДОЛЖЕН БЫТЬ ОТКЛЮЧЕН!
Обслуживание электрооборудования машины осуществляется в соответствии с «Правилами…» и заводскими графиками ежегодного производится
- испытание изоляции электрооборудования и коммуникационной проводки
- испытание защитного заземления машины.
- осмотры, текущие и капитальные ремонты электрооборудования и защитного заземления.
Эксплуатационное обслуживание электрооборудования машины производится квалифицированным электротехническим персоналом предприятия.
Электрическая схема соединения электрооборудования машины представлена на рисунке.
Органы управления трубогиба ИВ3430М
Общий вид пульта с обозначением органов управления.

| Поз. | Органы управления и их назначение |
| 1 | Арматура сигнальная – сигнализирующая о включении в сеть |
| 2 | Кнопка «Рабочего хода» привода |
| 3 | Кнопка «Обратного хода» привода |
| 4 | Кнопка «Стоп привода» |
| 5 | Переключатель режимов работы |
| 6 | Переключатель «Установки угла гиба» |
Расшифровка символов
| Значение символа | Обозначение символа | Значение символа | Обозначение символа |
| Сеть | Режим «Автомат» | ||
| Стоп привода | Режим «Наладка» | ||
| Рабочий ход привода | Установка углов гиба | ||
| Обратный ход привода |
трубогиб иб 3430, https://yandex.ru/clck/jsredir?from=yandex.ru%3bsearch%3bweb%3b%3b&text=&etext=1829.0nmzynxram6oxp40bxmax0k-6mpc4v-trsgcpnf-st5qg8axjfoqbom0_yppftql.4d7b699aa994a2d9d30c33c5c51278a8bb213643&uuid=&state=_blhiln4sxnivvl0w45ksic66ucig23qh8irg98qeixmeppkguc0yom24rr5dkidnijpu2tfuvc&data=ulnrnmk5wktyejr0ewjfyk1ldmtxbvzpofhzutj5njjxtjetmc10oehmwvz1mtfyy2i3evnaagktekrjmlczsnberjrsq0vtbwdktzq1yjjiduc2utbvzhb2sgj3lxpsnxutzmyydu4xajfsvu52z21pquh1d3jcx1bkm3vgbev1yuswbzqtx0hndkn4rs1izdbvquv3&b64e=2&sign=9be21e546c847ee48f60f248619aac8e&keyno=0&cst=aiuy0dbwfj7ixge4wdyjqsaytyyri96f0-8hzuldleydl1f_7q2y95kerb3etizfyuz9nbky2qqiyaffcphlkwupg7vesomegu0sg1dsem0qhqw3rjq1wko7hq7nvd5ktzov87m-k_9zq0emsq2oe7zldmttw0m9&ref=orjy4mgprjk5bodnw0uvlrrd71vzw9kp5uqozpmtkcvlviuok4qiee2mygp0k3fs3xhv5ga2fatlqep9gnjfcmfnshi088le4uhvympvhoccks6uqgsv0a97mn0gglr0&l10n=ru&cts=1529837531560&mc=4.99585249286 ИВ3430М трубогиб ив3430 технические характеристики. ив3430 продам, шестерня червячное ив 3428
Трубогиб электромеханический модели ИВ3430М может использоваться в котлостроительной и судостроительной промышленности, на заводах монтажных заготовок, при монтаже водопроводов и газопроводов, а также на строительных и монтажных площадках промышленного и гражданского строительства.
Стандартная комплектация ИВ3430М
- Машина трубогибочная
- Система управления версии П-23
- Оснастка для гибки трубы ф42 (Rcp 91 мм)
- Руководство по эксплуатации
- Декларация соответствия ТР ТС
Дополнительные опции ИВ3430М
Для изготовления дополнительного комплекта инструмента потребуется от заказчика: диаметр трубы, толщина стенки трубы, средний радиус гиба трубы)
- Редуктор
- Механизм зажима
- Механизм поджима
- Механизм выдергивания дорна
- Штанга
- Прибор отсчета угла поворота гибочного сектора
- Штанга разметочная
- Инструмент
- Ограждение
- Электрооборудование
- Электрошкаф
- Пульт управления
- Червяк ИВ3430-21-419
- Колесо червячное ИВ3430-21-202
- Шестерня ИВ3430-21-415
- Колесо ИВ3430-21-401
- Шестерня ИВ3430-21-402
- Колесо зубчатое ИВ3430-31-301
ПромСтройМаш является непосредственным производителем ИВ3430М Мы производим и продаём Трубогибочная машина ИВ3430М с дорном во все регионы РФ и страны ближнего зарубежья, такие как Беларусь, Казахстан. ИВ3430М нашего производства хорошо зарекомендовали себя в Москве, Ярославле, Нижнем Новгороде, Екатеринбурге, Новосибирске и других городах России. Купить ИВ3430М вы можете непосредственно у нас или у наших дилеров. Ø 40-108мм, стенка 5мм

