Запросить
коммерческое предложение
коммерческое предложение
Нужна консультация?
Закажите обратный звонок
Мы свяжемся с Вами в ближайшее время
Мы свяжемся с Вами в ближайшее время
Остались вопросы?
Свяжитесь с нами удобным способом
Назначение
Характеристики
Описание
Комплектация
Назначение гидравлических гильотинных ножниц НГ3322.25
- Ножницы гидравлические гильотинные НГ3322.25 предназначены для резки листового металла. Процесс резки гильотинными ножницами является наиболее производительным процессом по сравнению с другими разделительными операциями резкой газом, пильными полотнами или дисками, при условии прямолинейной резки или под углами при помощи боковых упоров.
- Гидравлический привод ножниц и ножи изготовленные из специальных сталей и прошедшие термообработку обеспечивают ровный качественный рез. Современный дизайн оборудования, удобство в работе, низкий шум и вибрация, позволяет использовать ножницы во многих производствах в России с высокими требованиями к надежности оборудования но и к особым требованиям к помещениям и условиям работы. Предлагаемый перечень ножниц НГ3322.25 позволяет выбрать станок с широким спектром производственных характеристик, в комплектации ножниц можно приобрести и использовать различные виды опций для потребностей различных типов производств.
- Гидравлические ножницы НГ3322.25 это новая продукция для Завода ПромСтройМаш, впервые используется опыт изготовления ножниц из импортных комплектующих с последующей сборкой на производственных площадях завода.
- Самым существенным преимуществом при покупке ножниц НГ3322.25 у нас, является прежде всего покупка оборудования собранного в России, персоналом с опытом работы более 15 лет, имеющим хорошую компетенцию в области кузнечно-прессового оборудования. На ножницы выдается расширенная гарантия 18 месяцев, заводской сервис и заводские условия сборки позволяют предлагать нашим клиентам отличное и конкурентное по цене оборудование.
Базовое климатическое исполнение УХЛ категория размещения 4 по ГОСТ 15150.
Технические характеристики НГ3322.25
| Толщина листа, мм | 16 |
| Длина реза, мм | 2500 |
| Длина ножа, мм | 2600 |
| Частота ходов ножа, мин | 7-10 |
| Угол наклона подвижного ножа, град. | 30' -2°30' |
| Наибольший ход заднего упора, мм | 800 |
| Мощность, кВт | 18,5 |
УСТРОЙСТВО И РАБОТА НОЖНИЦ ГИЛЬОТИННЫХ МОДЕЛИ НГ3322.25

- Крепления станины к фундаменту
- Станина
- Гидравлические прижимы
- Привод регулировки зазора между ножами
- Трубопровод гидравлической системы
- Упор задний
- *Механизм регулироки зазора между ножами
- Ограждение зоны реза
- Электрооборудование
- Станция гидропривода
- Правый гидроцилиндр
- Левый гидроцилиндр
Станина гидравлических гильотинных ножниц НГ3322.25

Станина является основным узлом гильотинных ножниц НГ3322.25, на котором крепятся остальные части гильотины. Станина сборно-сварочная состоит из следующих элементов:
- стйка левая
- стйка левая
- стол (на нём крепятся три ножа)
- прижимная балка
- направляющие
- воздухоспускной клапан ( для выпуска воздуха из балки прижимной 4)
Гидравлический прижим гильотинных гидравлических ножниц НГ3322.25

- Корпус
- Пружина
- Пята
- Полиуретановый демпфер
- Шток
- Манжета
- Уплотнительное кольцо
Гидравлический служит для фиксации листа на столе ножниц во время операции реза. Состоит из корпуса 1 с установленным уплотнительным коль-цом 7, штока 5 с установленной манжетой 6, который толкает пяту 3. Пружина 2 возвращает шток вверх при обратном ходе ножевой балки. Полиуретановый демп-фер 4 служит для бережного прижима заготовки, не оставляя следов.
Ножевая балка гильотинных гидравлических ножниц НГ3322.25

Установка ножей гильотинных ножниц НГ3322.25

- Верхние ножи
- Нижние ножи
- Компенсатор верхних ножей
- Компенсатор нижних ножей
- Винты крепления нижних ножей
- Винты крепления верхних ножей
- Футорки
- Контрогайки
Балка ножева представляет собой жесткую сварную конструкцию . К ней винтами 6 крепятся верхние ножи 1 Футорки 7 с контрогайками 8 служат для наиболее точной установки верхних ножей по все опорной плоскости ножевой балки
Задний упор гильотинных ножниц НГ3322.25

- Упорная балка
- Кронштейны
- Каретки
- Соеденительные оси
- Ходовые винты
- Электродвигатель
- Корпуса
- Ременая передача
- Подмоторная плита
- Тарельчатые пружины
- Упорная полоса
- Винты
Упор задний служит для установки длины разрезаемого листа. Состоит из упорной балки 1, которая через кронштейны 2 крепится на каретках 3. Кронштейны соединены с каретками с помощью осей 4. Каретки перемещаются на ходовых винтах 5, установленных в корпусах 7. Корпуса болтами закреплены на ножевой балке. Натяжение ременной передачи между эл.двигателем 6 и ходовым винтом осу-ществляется регулировкой подмоторной плиты 9. Плоскостность упорной поверхности балки обеспечивается винтами 12 и точ-ной регулировкой упорной полосы 11 с помощью потайных винтов. Тарельчатые пружины 10 служат демпфером для смягчения ударной нагрузки от подаваемой заготовки относительно механизма заднего упора.
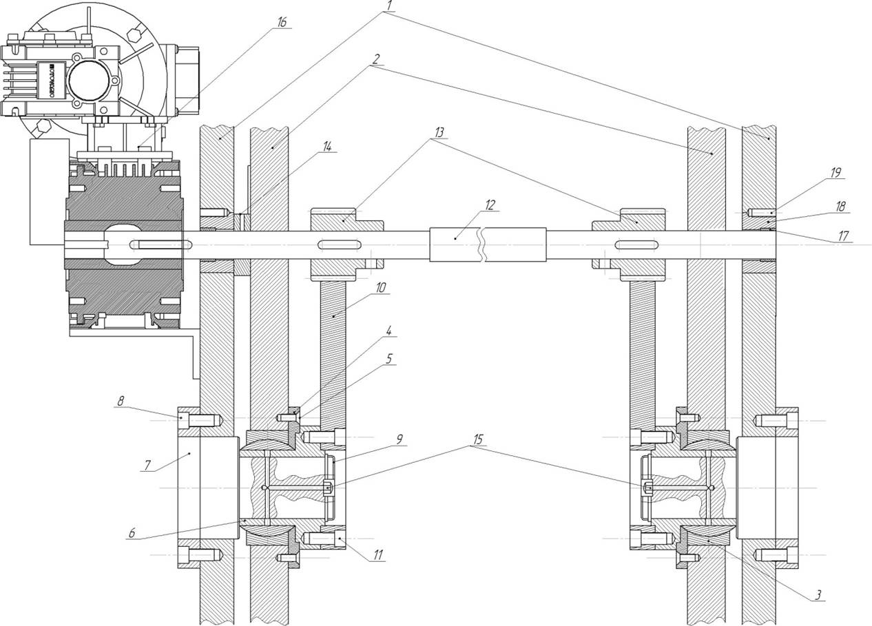
Механизм регулировки зазора гильотинных ножниц НГ3322.25

- Боковые стенки станины 2шт
- Ножевая балка 1шт
- Подшипник 2шт
- Крышка подшипника 2шт
- Болт 16шт
- Эксцентрик 2шт
- Заглушка 2шт
- Болт 12шт
- Ось 2шт
- Зубчатый сегмент 2шт
- Болт 8шт
- Вал 1
- Ведущая шестерня 2шт
- Стопорная втулка 2шт
- Масляный канал 2шт
- Мотор-редуктор 1шт
- Подшипник 2шт
- Эксцентриковая втулка 2шт
- Гужон 2шт
Механизм регулировки зазора между ножами осуществляется путем смемещения опорных подшипников 3 ножевой балки 2 с помощью проворота эксцентриков 6. К эксцентрикам закреплены зубчатые сегменты 10, которые приводятся в движение ведущими шестернями 13, установленными на валу 12 мотор-редуктора 16.
Гидравлика ножниц гильотинных НГ3322.25
Гидроцилиндр гильотинных ножниц НГ3322.25

- Корпус цилиндра
- Гайка цилиндра
- Уплотнение штока
- Манжета
- Грязесъемник
- Защитное фторопластовое кольцо
- Кольцо уплотнительное
- Шток
- Поршень цилиндра
- Защитное фторопластовое кольцо
- Проушина цилиндра
- Проушина штока
- Подшипник
- Стопорное кольцо
- Тавотница
- Винт
Гидравлическая схема гильотинных ножниц НГ3322.25

|
1 |
Корпус гидроблока |
|
|
1.2 |
Двухходовой клапан |
LC16A10D7 |
|
1.3 |
Корпус клапана |
|
|
1.4 |
Гидрораспределитель |
0810091225 |
|
1.5 |
Предохранительный клапан |
DBDH 6K1X/315 |
|
1.6 |
Золотниковый распределитель |
4WEH 16 L7X |
|
1.7 |
Гидрораспределитель |
0810091212 |
|
1.8 |
Клапан последовательный |
|
|
1.9 |
Двухходовой клапан |
LC32 A40D7X |
|
1.10 |
Корпус клапана |
|
|
1.11 |
Предохранительный клапан |
DBDH 10 K1X/315 |
|
1.12 |
Обратный клапан |
M-SR 20 KE05-1X |
|
1.13 |
Клапан |
|
|
1.14 |
Катушка |
24В |
|
1.15 |
Винт |
|
|
1.16 |
Отверстие |
|
|
1.17 |
Отверстие |
|
|
1.18 |
Отверстие |
|
|
1.19 |
Отверстие |
|
|
1.20 |
Отверстие |
|
Транспортирование и устновка гидравлических гильотинных ножниц НГ3322.25
Транспортирование ножниц НГ3322.25 следует производить только за цапфы согласно приведенной схемы 
- При захвате тросом необходимо следить за тем, чтобы не повредить лакокра-сочные покрытия ножниц.
- После установки на фундаменте цапфы и предохрани-тельные накладки снять.
- Перед установкой станок необходимо тщательно очистить от антикоррозионных по-крытий. Наружные поверхности станка покрыты антикоррозионной ингибированной смаз-кой НГ-203А. Для удаления смазки нужно воспользоваться деревянной лопаточкой и салфетками, смоченными бензином или уайт-спиритом.
- Во избежание коррозии очищенные поверхности нужно покрыть тонким слоем мас-ла ИЗОА ГОСТ 20799—75 или масла, заменяющего его.
Установка гильотинных гидравлических ножниц НГ3322.25

- Ножницы гильотинные НГ3322.25 устанавливаются на фундамент, показанный на рис
- При этом глубина заложения фундамента определяется в зависимости от состояния грунта, но не менее 800 мм.
- Точность установки ножниц НГ3322.25 в поперечном и продольном направлениях должна быть выдержана в пределах до 0,2 мм на длине 1000 мм.
- Горизонтальность стола ножниц необходимо периодически проверять (но не реже одного раза в шесть месяцев
Подготовка гильотинных гидравлических ножниц НГ3322.25 к первоначальному пуску
- Очистите ножницы гильотинные гидравлические НГ3322.25 от антикоррозийной смазки
- Убедиться в правильности монтажа и надежности крепления всех соединений
- Выполнить требования, изложенные разделе «Система смазки»
- Заземлить ножницы НГ3322.25 подключением к общей цеховой системе заземления.
- Подключить ножницы к электросети, проверив соответствие напряжения сети и электрооборудования ножниц.
- Ознакомиться с обозначением и назначением кнопок и переключателей на пульте управления.
- Установить переключатель режимов работы в положение «НАЛАДКА» и с помощью кнопок на пульте управления убедиться в правильности работы машины и выполнении всех команд, четкости срабатывания путевых выключателей и блокировок.
- Установить переключатель режимов работы в положение «Одиночный ход».
- С помощью педали произвести обкатку ножниц гидравлических гильотинных НГ3322.25 в течение одного часа.
- На всех режимах необходимо проверить четкость работы и герметичность гидросистемы, взаимодействие частей и деталей, отсутствие интенсивного нагрева трущихся пар и рабочей жидкости.
Система смазки ножниц гидравлических гильотинных НГ3322.25

Точки смазки ножниц гильотинных гидравлических НГ3322.25:
- Подшипники гидроцилиндров
- Подшипники ножевой балки
- Шестерни регулировки зазора между ножами
- Винты заднего упора и направляющие
Смазка ножниц обеспечивается жидкой смазкой, осуществляемой вручную с периодичностью раз в месяц
Техническое обслуживание ножниц гидравлических гильотинных НГ3322.25
- Техническое обслуживание гидравлических гильотинных ножниц НГ3322.25 состоит из проверки их технического состояния внешним осмотром и в процессе работы, цель которых – предупредить возникнове-ние неисправностей (повысить надежность) и уменьшить изнашивание деталей (по-высить долговечность) и, следовательно, длительное время поддерживать ножниц в состоянии постоянной технической исправности и готовности к работе. Правильная эксплуатация и уход гарантируют безотказную работу ножниц, увели-чивает их межремонтные сроки и производительность.Для этого нужно соблюдать следующие правила:
- содержать ножницы гильотинные гидравлические НГ3322.25 в чистоте;
- приступая к работе, проверить в наличие масла в баке гидропривода, редукторе, при необходимости долить;
- первичную замену масла производить через три месяца после пуска ножниц в эксплуатацию, а затем регулярно осуществлять контроль за качеством масла и, при необходимости заменять его, но не реже одного раза в шесть месяцев работы;
- перед пуском удалить воздух из гидросистемы;
- периодически проверять паспортные данные ножниц, при наличии отклонений ножницы остановить и настроить;
- следить за состоянием трубопроводов на отсутствия течи масла;
- ежедневно проверять исправность заземляющих устройств;
- при длительной интенсивной работе ножниц периодически проверить нагрев узлов, следить за состоянием подшипниковых узлов, они должны быть постоянно смазаны;
- следить за состоянием электрических блокировок рабочих органов;
- по окончании работы очистить ножницы гильотинные гидравлические НГ3322.25 от грязи и пыли, смазку производить согласно требованием раздела «Смазочная система» настоящего РЭ;
- периодически, не реже одного раза в шесть месяцев проверять положение ножниц на фундаменте.
- ножницы гильотинные гидравлические НГ3322.25 обслуживаются одним оператором III разряда.
Электрооборудование гидравлических гильотинных ножниц НГ3322.25
- Питание электрооборудования гидравлических ножниц НГ3322.25 осуществляется через вводной автоматический выключатель QF1 от цеховой сети.
- Род тока – переменный, 3-х фазный.
- Напряжение – 380В; 50 Гц.
- Напряжение цепей управления постоянного тока 24В.
- Напряжение цепей сигнализации постоянного тока 24В.
- Напряжение цепей освещения реза постоянного тока 24В.
- Мощность главного привода 30кВт.
- Насос гидросистемы ножниц приводится во вращение асинхронным трехфазным двигателем с короткозамкнутым ротором.
- Двигатель маслостанции включается магнитным пускателем КМ1 через автоматический выключатель QF2.
- Управление гидроаппаратами осуществляется электромагнитными клапанами. Рабочее напряжение катушек электромагнитов – 24В постоянного тока. Ограничение движения суппорта ножа осуществляется конечными выключателями.
- Система управления построена на базе ПЛК Omron CP1L и панели оператора Omron NB7W.
- Управление прессом осуществляется с пульта управления. На панели пульта располагаются панель оператора, кнопки управления, переключатели, индикация .
- На боковой стенке электрошкафа установлен вводной автомат QF1. Расположение пускорегулирующей и управляющей аппаратуры приведено на рисунке 2.
- Через отверстия в днище электрошкафа подводится питание ~380В трехфазного переменного тока 4х16мм2.
Панель пульта управления ножниц гидравлических гильотинных НГ3322.25
Первоначальное включение гидравлических ножниц НГ3322.25 после монтажа должно осуществляться опытным и достаточно квалифицированным персоналом, имею-щим допуск к производству пуско-наладочных работ и предварительно ознаком-ленным с принципиальной электросхемой гидравлических ножниц и данным руко-водством.
Установка зазора между ножами идравлических ножниц НГ3322.25;
после ввода авторизации в системе управления откроется окно "Системные настройки"

- Ввыставить «Значение в точке» =0,1
- «Поправочный коэффициент» =0,00068
- Важать кнопку "SET"
- Первоначальная установка «Нуля» зазора завершена.
Автоматическая установка зазора между ножами

Для автоматической установки зазора необходимо из режима «Наладка» перейти в режим «Одиночный ход». На панели оператора на главном экране необходимо выбрать толщину металла, зазор выставляется в соответствии с данными:
|
Толщина листа, мм |
2 |
4 |
6 |
8 |
10 |
13 |
16 |
|
Зазор, мм |
0.1–0.15 |
0.35 |
0.55 |
0.75 |
0.95 |
1.25 |
1.55 |
При нажатии на кнопку «Установка механизмов» зазор выставится автоматически.
Установка заднего упора ножниц гидравлических гильотинных НГ3322.25
В окне "Системные настройки":
- Выставить «Значение в точке 0»= 0
- Выставить «Поправочный коэффициент» = 765
- Важать кнопку "SET"
- Первоначальная установка «Нуля» заднего упора завершена.
По Техническому Заданию заказчика ножницы модели НГ3322.25 могут изготавливаться с шириной стола до 6000 мм, толщиной резки до 30 мм, при этом могут измениться габаритные размеры и масса ножниц. Подробное ТКП можно получить после предоставления Технического Задания.Технические изменения, существенно не влияющие на характеристики ножниц, завод-изготовитель оставляет за собой.
Стандартная комплектация НГ3322.25
- Ножницы НГ3322.25 в сборе
ПромСтройМаш является непосредственным производителем НГ3322.25 Мы производим и продаём Ножницы гидравлические гильотинные НГ3322.25 во все регионы РФ и страны ближнего зарубежья, такие как Беларусь, Казахстан. НГ3322.25 нашего производства хорошо зарекомендовали себя в Москве, Ярославле, Нижнем Новгороде, Екатеринбурге, Новосибирске и других городах России. Купить НГ3322.25 вы можете непосредственно у нас или у наших дилеров. Толщина листа до 16мм;
Длина реза 2500
Длина реза 2500
